Porzione di quadrifamiliare in vendita

Monte Compatri, Via delle Marmorelle - Laghetto
€ 365.000
5 locali 5 locali
249 Mq 249 Mq
2 bagni 2 bagni

Porzione di quadrifamiliare in vendita

Monte Compatri, Via delle Marmorelle - Laghetto

Descrizione annuncio

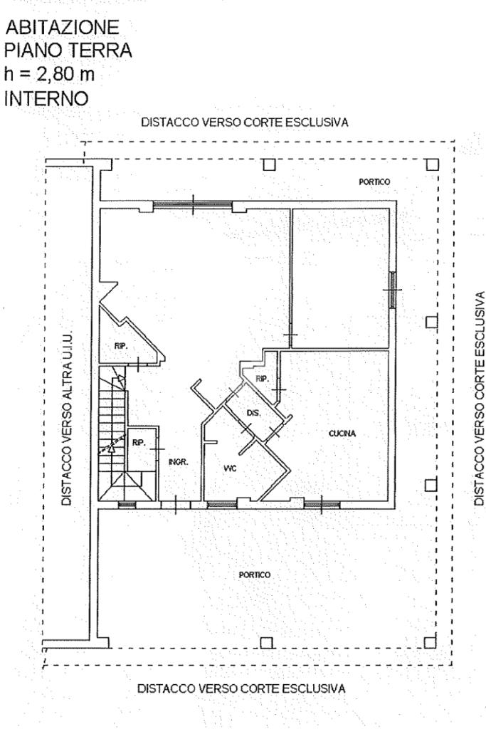
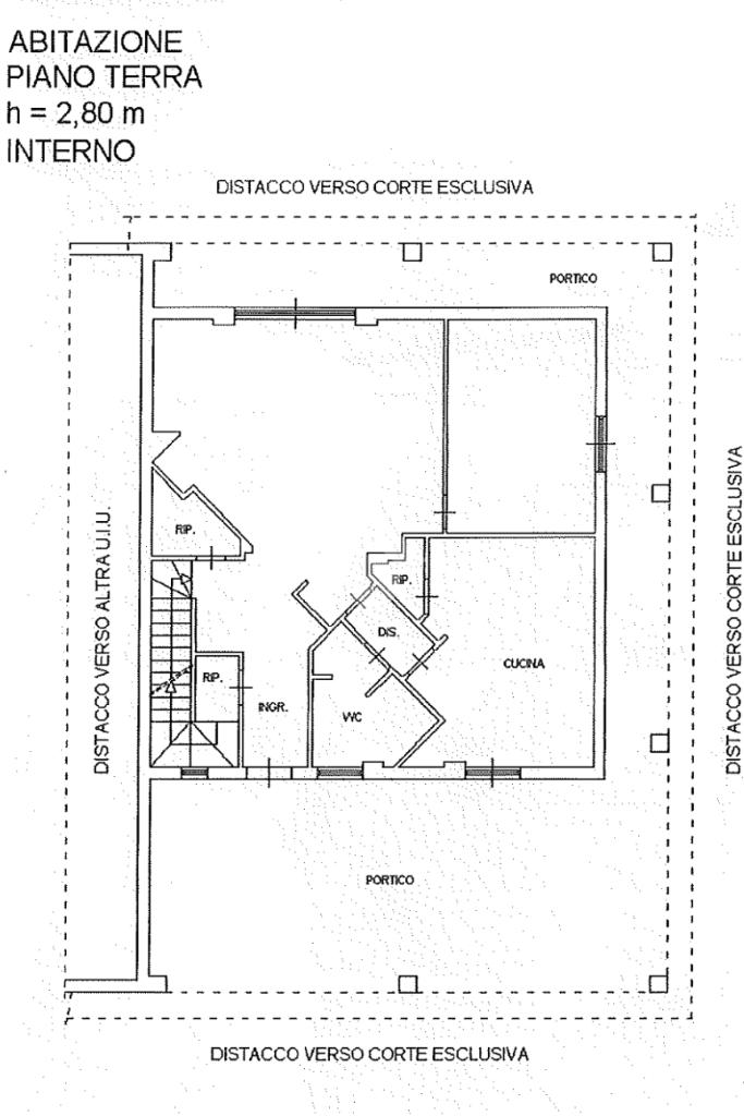
In via Marmorelle, nella zona di Laghetto, proponiamo in vendita una soluzione semi-indipendente disposta su due livelli, immersa in un rigoglioso giardino di circa 2.000 mq.

Un vialetto d’ingresso conduce all’ampio portico che abbraccia tre lati dell’abitazione, regalando un’accogliente zona esterna ideale per momenti di relax.
Varcata la soglia, si è accolti da un ampio e luminoso soggiorno, mentre un disimpegno conduce alla zona notte, composta da due camere matrimoniali entrambe con accesso diretto al giardino, di cui una dotata di un pratico ripostiglio privato.
A completare il piano terra, un bagno finestrato con box doccia e un ulteriore ripostiglio.

Una scala conduce al piano inferiore, dove si sviluppa una spaziosa e rifinita sala hobby con camino, angolo living e cucina angolare con piano bar. Sullo stesso livello trovano spazio un ambiente multifunzionale e un'intercapedine ad uso ripostiglio. Un bagno con box doccia completa il piano.

Da una porta blindata si accede all’ampio garage di circa 100 mq, dotato di accesso diretto alla rampa con cancello automatico che conduce al giardino. Quest’ultimo è impreziosito da un portico in legno con angolo cottura esterno, ideale per vivere al meglio gli spazi all’aperto e organizzare momenti conviviali, e da un fabbricato in legno completo di bagno e ripostiglio.

La proprietà è dotata di un sistema di videosorveglianza, impianto d'allarme e tecnologia domotica che consente di gestire luci interne, esterne e tapparelle direttamente da smartphone.
Le utenze di acqua, luce e gas sono dirette, mentre il sistema fognario è gestito tramite fossa biologica.
L’impianto di irrigazione è alimentato da un pozzo privato.

Una soluzione ideale per chi desidera vivere in un contesto tranquillo, riservato e immerso nel verde, senza rinunciare al comfort e alla modernità, in un’abitazione curata e ricca di spazi vivibili.

Per maggiori dettagli, vi invitiamo a contattarci o a recarvi presso il nostro ufficio in Piazza Marco Mastrofini 10, Monte Compatri. Siamo a vostra disposizione.

Mostra tutto

Nelle vicinanze

Trasporto pubblico Trasporto pubblico
Colle Mattia
Colle Mattia
1,1 Km
Colonna Galleria
Colonna Galleria
1,4 Km
Colle Mattia/Civico 51
Colle Mattia/Civico 51
880 m
SP66a / v. Santa Chiara
SP66a / v. Santa Chiara
900 m
Scuole Scuole
Scuole
1,2 Km
Istituto Comprensivo "Tiberio Gulluni"
1,2 Km
Supermercati Supermercati
Elite
1,5 Km
Negozi Negozi
Forno
1,1 Km
Bar Bar
Bar Belvedere
1,2 Km
Ristoranti Ristoranti
La Taverna Antica Colonna Di Mercuri R. E C.Sas
1,0 Km
Azienda agricola La Collina
1,1 Km
L'Angoletto di Pino e Carmela
1,2 Km
Da Ciro
1,3 Km
Ristorante da Umberto
1,9 Km
Mostra tutto

Caratteristiche

Rif.:
61121209
Piano:
2 di 2 (Piano basso)
Box:
1
Terrazzi:
1
Camere da letto:
2
Arredamento:
Assente
Mostra tutto
Prezzo Prezzo
€ 365.000
Rata mutuo Rata mutuo
€ 1.723 / mese
Spese annue Spese annue
€ 0
Proponi il tuo prezzoProponi il tuo prezzo

Classe Energetica

D
D
D
D
D
D
D
D
D
EP invernale del fabbricato:
EP estiva del fabbricato:
Anno di costruzione:
2007
Riscaldamento:
Autonomo
Tipo impianto:
A radiatori
Tipo alimentazione:
Metano

Ti interessa visionare l'immobile?

Fissa un appuntamento  Fissa un appuntamento

Richiedi informazioni

Clicca su Leggi per aprire l'informativa
* Questi campi sono obbligatori

Calcola il tuo mutuo

Semplice e senza impegno
Anticipo

( % )
Mutuo

( % )

pochi semplici passi

inserisci i tuoi dati
Questionario completato
Grazie per aver richiesto un appuntamento senza impegno con un nostro Consulente del Credito e Assicurativo.

Hai inserito correttamente tutti i dati necessari e a breve riceverai una e-mail con un link da convalidare per inviare i tuoi dati.
Affiliato
Castelli Mediazione Srl
P.zza Marco Mastrofini, 10 00040 Monte Compatri (RM)

Il nostro staff


  • Anthony Zitelli
    Responsabile
P.zza Marco Mastrofini, 10 00040 Monte Compatri (RM)
Zona: Castelli Romani - Montecompatri
Mostra su mappa
Orari: dal lunedì al venerdi 9.15/13.00 15.30/19.30 sabato 9.15/13 15.30/18.30
Affiliato
Castelli Mediazione Srl
P.zza Marco Mastrofini, 10 00040 Monte Compatri (RM)

2025 Tecnocasa Franchising S.p.A. - P. IVA 08365160152 - Via Monte Bianco 60/A 20089 Rozzano (MI). Ogni agenzia ha un proprio titolare ed è autonoma. Privacy policy | Policy utilizzo | Cookie policy