 
			 
				 
	 
		In via delle Canettacce proponiamo in vendita un appartamento con ingresso indipendente e un giardino privato di 1.400 mq, ideale per chi cerca spazi ampi e riservati.
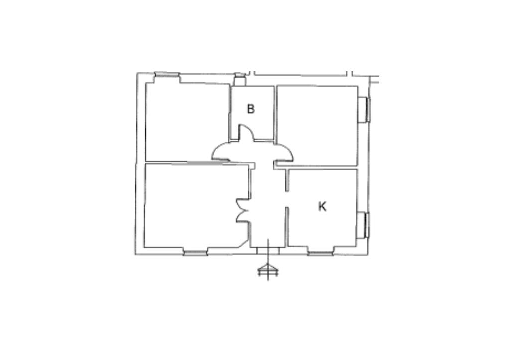
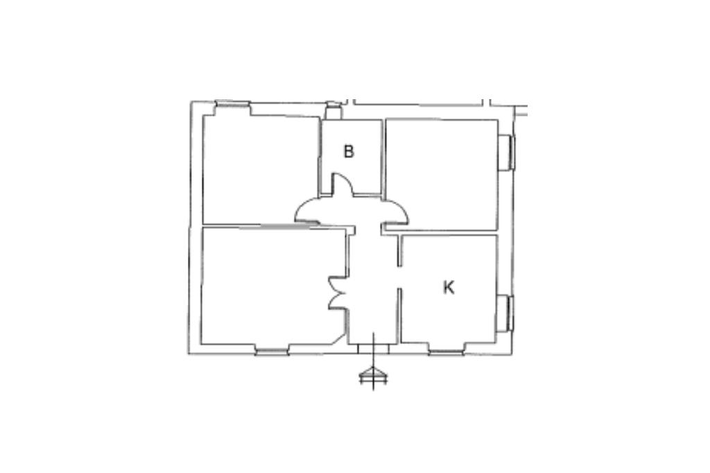
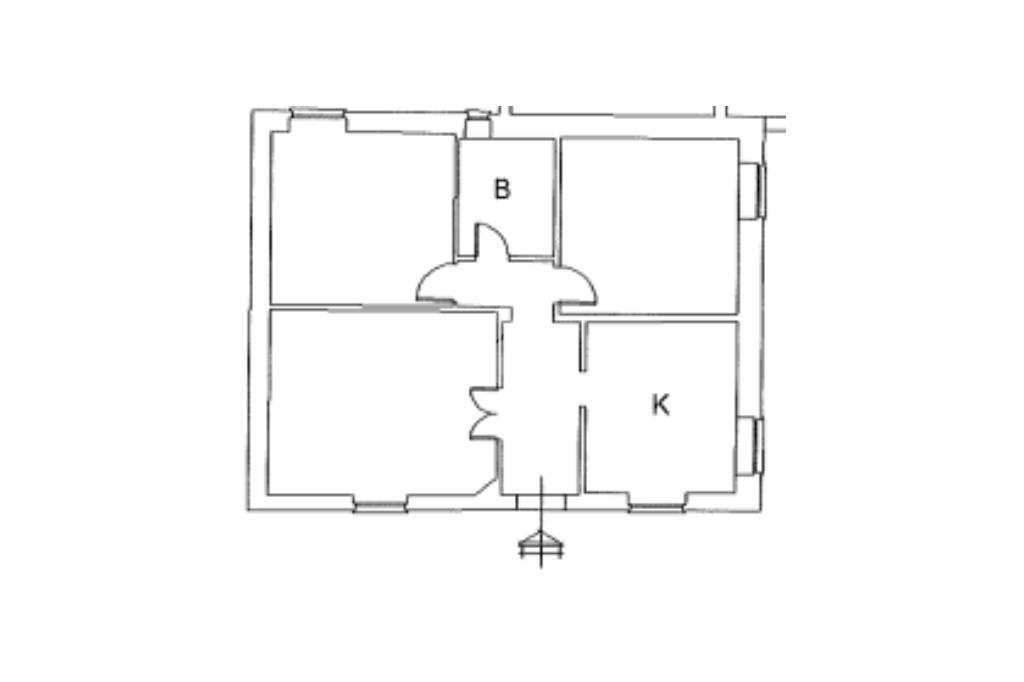
La casa, luminosa e ben distribuita, si sviluppa su circa 100 mq ed è composta da un salone con accesso diretto al giardino, una cucina separata e funzionale anch’essa con uscita sullo spazio esterno, un disimpegno che conduce alla zona notte con due camere matrimoniali e un bagno ristrutturato di recente.
L’immobile offre la possibilità di essere completamente personalizzato, poiché necessita di interventi di ristrutturazione: gli impianti e gli infissi sono da rivedere, e i lavori già iniziati permettono di modellare gli ambienti secondo il proprio gusto.
Il giardino, con la sua ampiezza e l’ottima esposizione, rappresenta il vero punto di forza di questa soluzione, ideale per trascorrere momenti di relax o vivere all’aperto con la famiglia.
L’ingresso indipendente, da completare con l’installazione del cancello, garantisce privacy e comodità, mentre la presenza della fossa biologica per la fognatura assicura la funzionalità dei servizi.
La proprietà gode di riservatezza, avendo solo un’altra abitazione sovrastante, e si trova in una zona verde caratterizzata dalla presenza di altre soluzioni indipendenti, a meno di 2 km dal casello autostradale di San Cesareo, che consente di raggiungere Roma e i principali collegamenti in pochi minuti.
Una proposta ideale per chi desidera una casa con grande potenziale, immersa nella tranquillità ma vicina a ogni servizio.
Per maggiori dettagli, vi invitiamo a contattarci o a recarvi presso il nostro ufficio in Piazza Marco Mastrofini 10, Monte Compatri. Siamo a vostra disposizione.
Ti interessa visionare l'immobile?